
HD-tyyppinen eurooppalainen Hoist Electric-yksisuuntainen yläpuolinen nosturi
Eurooppalainen yksittäinen kantoraketti on kompakti nostokoneisto, joka on suunniteltu ja valmistettu tiukasti FEM- ja DIN-standardien mukaisesti. Se on kehittynyt tekniikka ja kaunis muotoilu. Yleisluonteinen ja jousitustyyppinen, eurooppalaisen sähköisen nostolaitteen käyttötarkoitus, joka soveltuu työpaja- ja varastomateriaalien käsittelyyn, suurien osien tarkkuuden kokoonpanoon ja muihin paikkoihin.
HD-tyyppinen eurooppalainen Hoist Electric-yksisuuntainen yläpuolinen nosturi
Lyhyt kuvaus:
Eurooppalainen yksittäinen kantoraketti on kompakti nostokoneisto, joka on suunniteltu ja valmistettu tiukasti FEM- ja DIN-standardien mukaisesti. Se on kehittynyt tekniikka ja kaunis muotoilu. Yleisluonteinen ja jousitustyyppinen, eurooppalaisen sähköisen nostolaitteen käyttötarkoitus, joka soveltuu työpaja- ja varastomateriaalien käsittelyyn, suurien osien tarkkuuden kokoonpanoon ja muihin paikkoihin.

Sitä voidaan laajalti käyttää koneiden valmistuksessa, metallurgia, öljy, petrifaction, satama, rautatie, siviili-ilmailu, elintarvike-, paperi-, rakennus-, elektroniikka-alan työpaja, varastointi ja muut materiaalinkäsittelyn tilanteissa, jota käytetään materiaalin käsittelyyn, joka tarvitsee tarkkaa paikannusta, suuret komponentit täsmällinen asennus.

Yksityiskohtaiset kuvat:

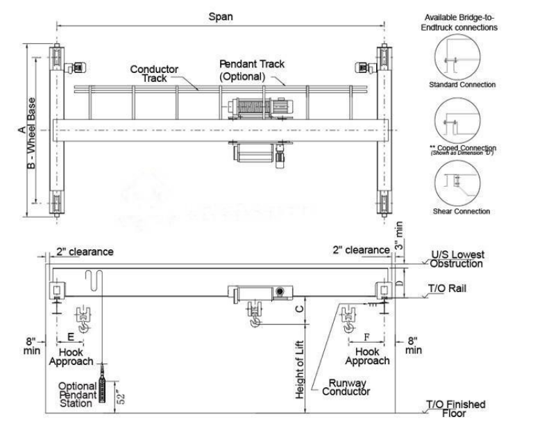
Piirustus:

Tekniset parametrit:
jänneväli | m | 7,5 | 10,5 | 13.5 | 16,5 | 19.5 | 22,5 | 25.5 |
kapasiteetti | T | 1 ~ 12.5t | ||||||
Kokonaispaino | kg | 1781 ~ 12086 | ||||||
Vaunun paino | kg | 405 ~ 740 | ||||||
Max. Pyöräkuorma | kn | 13.5 ~ 90.94 | ||||||
Matkakisko | P24 ~ P43 | |||||||
Nopeus | m / min | 0,8 / 5 | 0,8 / 5 | 0,8 / 5 | 0,8 / 5 | 0,8 / 5 | 0,8 / 5 | 0,8 / 5 |
Nostokorkeus | m | ≥ 6 | ≥ 6 | ≥ 6 | ≥ 6 | ≥ 6 | ≥ 6 | ≥ 6 |
Moottoriteho yhteensä | kw | 4.31 | 4.31 | 4.31 | 4.31 | 4,67 | 4,67 | 4,67 |
Nosturin nopeus | m / min | 3-30 | 3-30 | 3-30 | 3-30 | 3-30 | 3-30 | 3-30 |
Vaunun nopeus | m / min | 2-20 | 2-20 | 2-20 | 2-20 | 2-20 | 2-20 | 2-20 |
Työtehtävä | M5 / A5 | |||||||


English
Norsk
România limbi
slovenščina
српски (ћирилица)
українська
Polski
Български
Eesti
Čeština
Ελληνικά
türkiye





